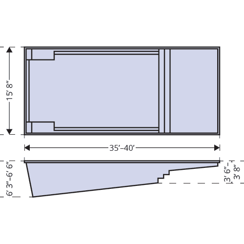
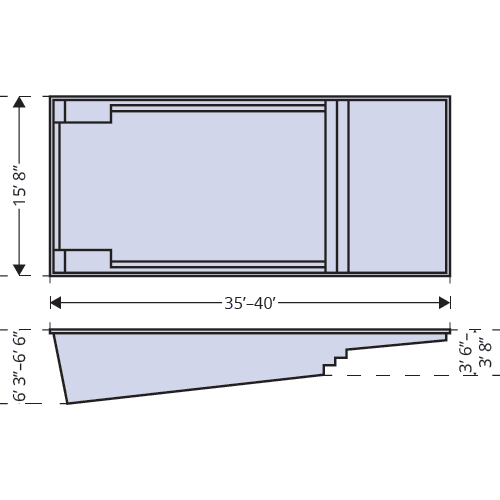
Barrier Reef Pool
Discover the excellence of Barrier Reef fiberglass pools with Copano Pools & Spas—where style meets strength for your perfect backyard retreat. We offer a wide selection of Barrier Reef models known for their durability, vibrant gelcoat finishes, and low-maintenance design. Enjoy lasting beauty and comfort with a pool designed for relaxation, fun, and luxury.
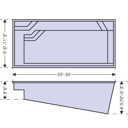
Crystite Classic Pool Color Options























